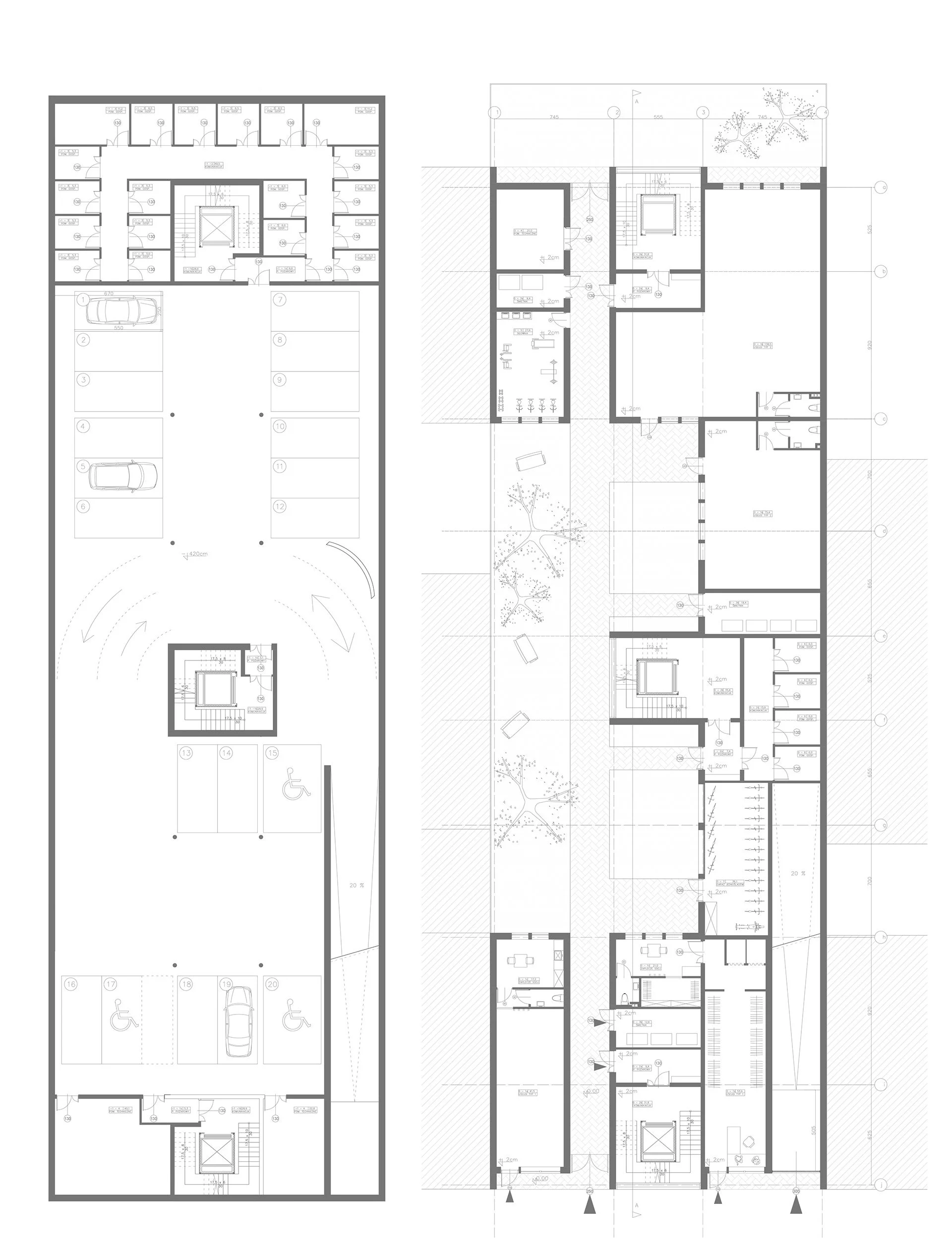
TARGOWA 49

MULTI-FAMILY RESIDENTIAL BUILDING 2015

Very young Vera guided by W.A. Krakowski

Project developed under the guidance of Włodzimierz Krakowski, one of the best teachers I have ever had.


You are no longer with us, Professor, yet your way of seeing architecture remains—quietly present in your students.

Bez makiety nic nie widać, niech mnie Pani nie oszukuje ładnymi obrazkami, jestem za stary na to!