GDAŃSKA/ 1 MAJA

MEASUREMENTS OF THE TENEMENT HOUSE 2020

Team: Marcelina Rembowska x V E R A

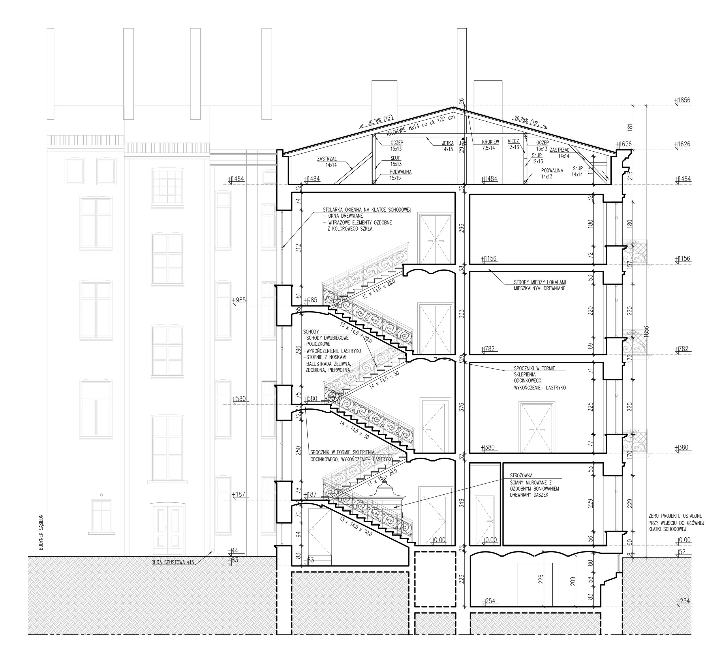
An essential dimension of architectural education is direct, physical engagement with the built environment. As a conscious departure from the increasingly dominant— and, in my view, excessive— reliance on computer-based work in contemporary architectural practice, I formed a two-person team with a fellow student during my studies. We undertook detailed measurements of still-inhabited townhouses in the historic city center.

Working within these modest, often poorly maintained spaces—saturated with the everyday lives of their residents who nonetheless called them home—offered the most profound lesson I received on the nature of dwelling. Beyond gaining insight into the construction techniques and design principles of historic architecture, I came to understand a building as a living entity, shaped and reshaped across the span of its existence.

This demanding work not only contributed tangibly to the revitalization of our hometown, as our measurements later formed the basis for renewal projects, but also left a more enduring imprint. The stories encountered during the meticulous documentation of these buildings have remained with me ever since, offering the clearest and most complete answer I know to the question of what architecture truly is?

After five weeks of intensive work, conducted both in situ and in CAD, the documentation was completed and formed the basis for revitalization efforts. Through this process, we contributed directly to the improvement of our hometown—leaving a small but tangible mark on the evolving fabric of Łódź.